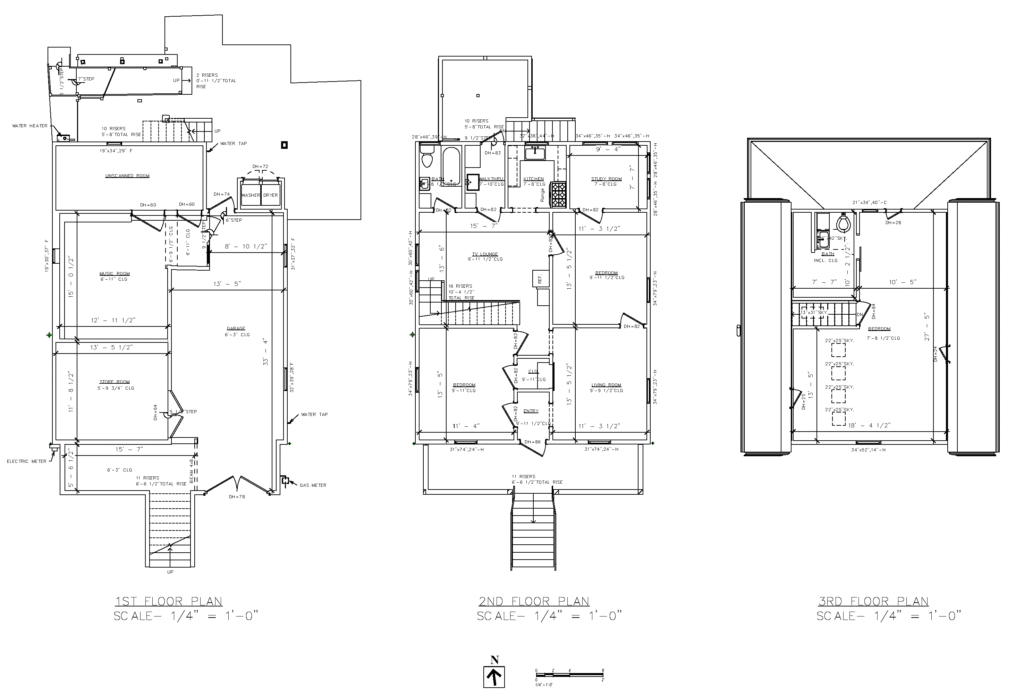
We provide accurate asbuilt drawings quickly and efficiently.
We scan every project using advanced precision imaging laser
scanners.
We deliver a complete drawing package which includes PDFs, 2D CAD drawings, Revit Model and an IFC Model (to import into SketchUp, ArchiCAD or most other 3D software)

All projects modeled in Revit 3D
Any elevation or section you need.















